
Unit Cafe — cтуденческое кафе их морских контейнеров.
С каждым годом архитекторы все чаще используют морские контейнеры в качестве основы для своих проектов. Металлические конструкции гораздо удобнее и быстрее монтируются, а также снижают стоимость строительных работ. Украинские архитекторы из 14 транспортных контейнеров создали студенческое кафе.

Архитекторский проект украинской фирмы TSEH Archtectural Group.
Архитектурная фирма TSEH Archtectural Group превратила морские контейнеры в уютное студенческое кафе, расположенное на территории школы программирования UNIT Factory в Киеве (Украина). Учебное заведение отличается инновационным подходом к обучению талантливых молодых людей, поэтому было принято решение кампус делать таким же нестандартным.

Unit Cafe. Открытая терраса.

Unit Cafe. Интерьер.
Unit Café не скрывает своего «промышленного происхождения». Гофрированная текстура просматривается снаружи здания. Нижний этаж окрашен в черный цвет, а верхний – в ярко-зеленый. Те же оттенки использованы и внутри кафе. Чтобы сделать интерьер более ярким, в качестве цветовых акцентов были добавлены стулья желтого цвета. Площадь Unit Café составляет 275 квадратных метров.

Unit Cafe. План второго этажа.

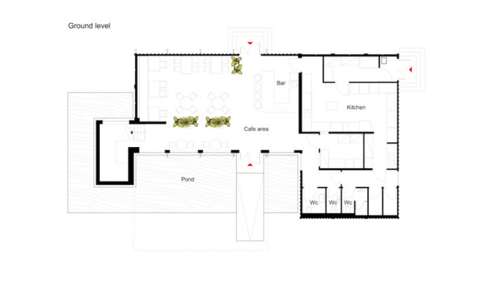
Unit Cafe. План первого этажа.

Кафе на территории кампуса школы программирования UNIT Factory.
В городе Остин (штат Техас) также можно отыскать отличное заведение,
построенное из металлических контейнеров. Бар из 7 контейнеров, окрашенных в яркие оттенки, является самым популярным заведением в городе.
Источник: