
Эко-баня семьи Горенко.
Ничто так не способствует отдыху души и тела, как баня. Горячий воздух, запах натурального дерева, шипение углей помогают расслабиться и забыть обо всех заботах. Именно так думала многодетная семья Горенко, обращаясь в телепередачу «Дачный ответ». То, что они получили в итоге – просто потрясающе. Это не баня, а настоящий спа-комплекс на загородном участке.

Баня, выполненная в архитектурном стиле «бионика».
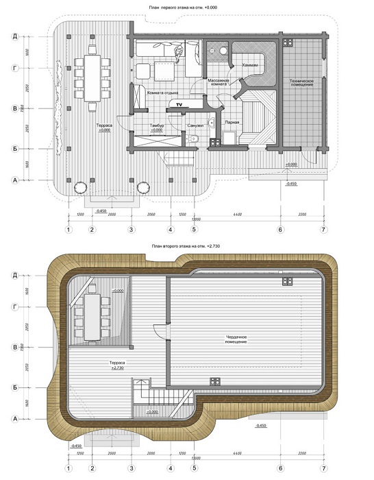
Когда членов семьи Горенко спрашивали, какую баню они хотят получить в итоге, мнения разделились: одни говорили о финской, а другие мечтали о хаммаме. Проектом занялись архитектор Максим Лукьянов и дизайнер Ольга Плахова. Они решили исполнить мечты всех членов семьи и создать настоящий банный комплекс, содержащий в себе турецкую баню, парную, душевую, туалет, комнату отдыха, игровую комнату на втором этаже и просторную террасу.

Спа-комплекс от Максима Лукьянова и Ольги Плаховой.
Постройка выполнена из экологически чистых материалов. Более того, архитектор, занимаясь разработкой проекта, решил подвести под понятие «бионика», которое подразумевает симбиоз естественных природных форм и натуральных материалов.

Терраса для отдыха.
Для строительства стен использовался сибирский кедр, который утеплялся пластам минеральной ваты. Внутренняя отделка состоит из ливанского и канадского кедра. Вся древесина обработана особой пропиткой, препятствующей гниению.

Почти во всех помещениях бани есть полы с подогревом.
Любопытно, но практически повсюду уложены полы с подогревом. Для их функционирования используется котел с 800-литровым баком для подогрева воды.

Крыша из камыша.
Настоящей «изюминкой» бани стала необычная кровля, основным материалом для которой стал камыш. Толщина крыши варьируется от 35 до 45 см. Специалисты утверждают, что даже самые сильные ливни не промочат этот настил даже на треть. В дополнительной изоляции нет необходимости.

План бани.
Баня семьи Горенко буквально напичкана электроникой. В душевой есть ведро с автоматическим набором воды, чтобы можно было выливать ее на себя сверху, в хаммаме можно увидеть точечную оптоволоконную подсветку, в туалете установлен «умный» унитаз с функцией биде.
На скалистом берегу одного из частных островов на озере Гурон (Канада) находится оригинальная сауна, построенная в форме грота. Ее «обтекаемые» формы полностью повторяют очертания природных подводных пещер.
Источник: